mourbon

Interior Design

Mit Chit House: Explore looklen architects' masterpiece of innovative interior design.

By Mohit Chakravorty

May 27 2025


Architect: Looklen Architect.

Project year: 2020

Photo Credits: Varp Studio


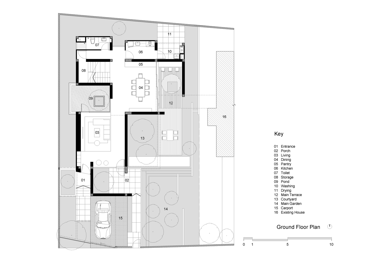
Located in the tropical “SuanPhak” district, Mit Chit House is an expansion project that extends from an existing house on the right side of the property. This new 350sqm addition, designed for a growing family, enhances the living space and creates a larger common area within the 420sqm property.


Mit Chit House is nestled in a lush compound surrounded by vibrant fruit gardens, adding charm to the older estate. The peaceful and quiet atmosphere of the area inspired the name “Mit Chit.” While the name means “close together,” the homeowners see a deeper meaning—“close friendship”—a reflection of how this project has brought the family closer.





The design of Mit Chit House preserves the surrounding greenery and focuses on safety. At its center are four mini courtyards, each measuring 3x3 meters or 3x5 meters. These open spaces, along with wide hallways and numerous windows, maximize natural light and create a seamless connection between the indoors and outdoors. No matter where you are in the house, you’re greeted with beautiful views that blend the interior with the lush greenery outside.


Architecturally, Mit Chit House features a modern exterior driven by geometric design. The house’s shape starts as a square, split and rotated into L-shaped pieces that combine into a visually striking structure. Inside, simplicity reigns, with open spaces and minimal materials creating a familiar and inviting atmosphere. The contrast between the exterior’s complexity and the interior’s simplicity makes the house intriguing from every angle.






The walls of Mit Chit House are designed with Passive Design principles, keeping the interior cool and providing elegant frames for the outdoor views. These walls not only insulate the house from the southern sun but also enhance the beauty of the surrounding greenery.


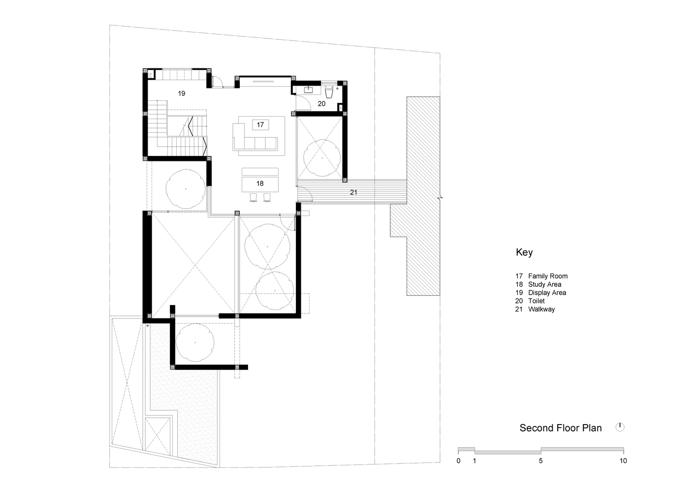
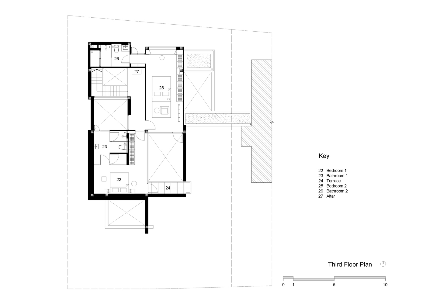
Situated on the left side of the property, Mit Chit House leaves space on the right for a large garden that connects the original and new houses. The ground floor features a spacious open-plan living and dining area that flows from the front to the back of the house. The vertical space above the living room opens up to the second-floor den, creating a sense of connection across the levels. The den serves as a central point between the old and new sections, allowing easy access for parents to visit their children. This open space also offers stunning views of the outdoors. The top floor is more private, with two siblings’ bedrooms overlooking the property’s private gardens on either side.






One of the standout features of Mit Chit House is its clever use of space. The interior is designed to be open and airy, with wide hallways and large windows that invite natural light to flood every corner. This design choice not only brightens up the space but also creates a seamless flow between the indoors and the lush greenery outside. Wherever you are in the house, you're never far from a stunning view of the surrounding gardens.


The heart of the home is the open-plan living and dining area, a space designed to bring the family together. The design is minimalistic yet warm, with carefully selected materials that add texture and character without overwhelming the senses. The color palette is kept neutral, allowing the natural beauty of the wood and stone finishes to shine through. This simplicity makes the space feel inviting and comfortable, perfect for both everyday living and special family gatherings.






What truly sets Mit Chit House apart is the way it connects the old and new parts of the property. The second-floor den serves as a bridge between the original house and the new extension, creating a sense of continuity that ties the entire home together. This space is more than just a passageway; it’s a cozy, open area that offers spectacular views and encourages interaction among family members.





The bedrooms on the top floor offer a private retreat for the family, each with large windows that frame views of the garden. These rooms are designed with the same simplicity and elegance that runs throughout the house, providing a peaceful sanctuary away from the hustle and bustle of Bangkok.





Mit Chit House is a masterclass in modern interior design that doesn’t sacrifice comfort for style. Looklen Architects have created a space where the family can grow, relax, and stay connected, all while enjoying the beauty of their natural surroundings



BE THE FIRST ONE TO KNOW

Get the latest updates on interior design, home decor and design inspiration.


Editor

Mohit Chakravorty

I'm Mohit, an interior designer and the editor of Mourbon. In my blog, I share ideas, trends, and insights on interior design, architecture, home decor and everything that inspires me. My goal is to create designs and products that make a real impact while helping others bring their dream spaces to life. If you're as passionate about design as I am, you’ll feel right at home here!


You may also like



Trending



SHOP MY FINDS